Paritalo ja omakotitalo Kirriin
Rakentaminen käynnissä
Rakennamme paritalon ja kaksikerroksisen omakotitalon Jyväskylän Kirriin. Talot rakennetaan muuttovalmiiksi 2/2026.
Maalämpö | oma tontti | autokatos
Paritalo ja omakotitalo Jyväskylä, Kirri
Kirrin asuinalueelle suunnitellut paritalo ja omakotitalo rakentuvat omille tonteilleen kiinteistömuotoisina. Koteja lämmittää ekologinen maalämpö vesikiertoisella lattialämmityksellä.
Omakotitalo, Saarijärventie 103, rakenteilla. Valmistuu 2/2026:
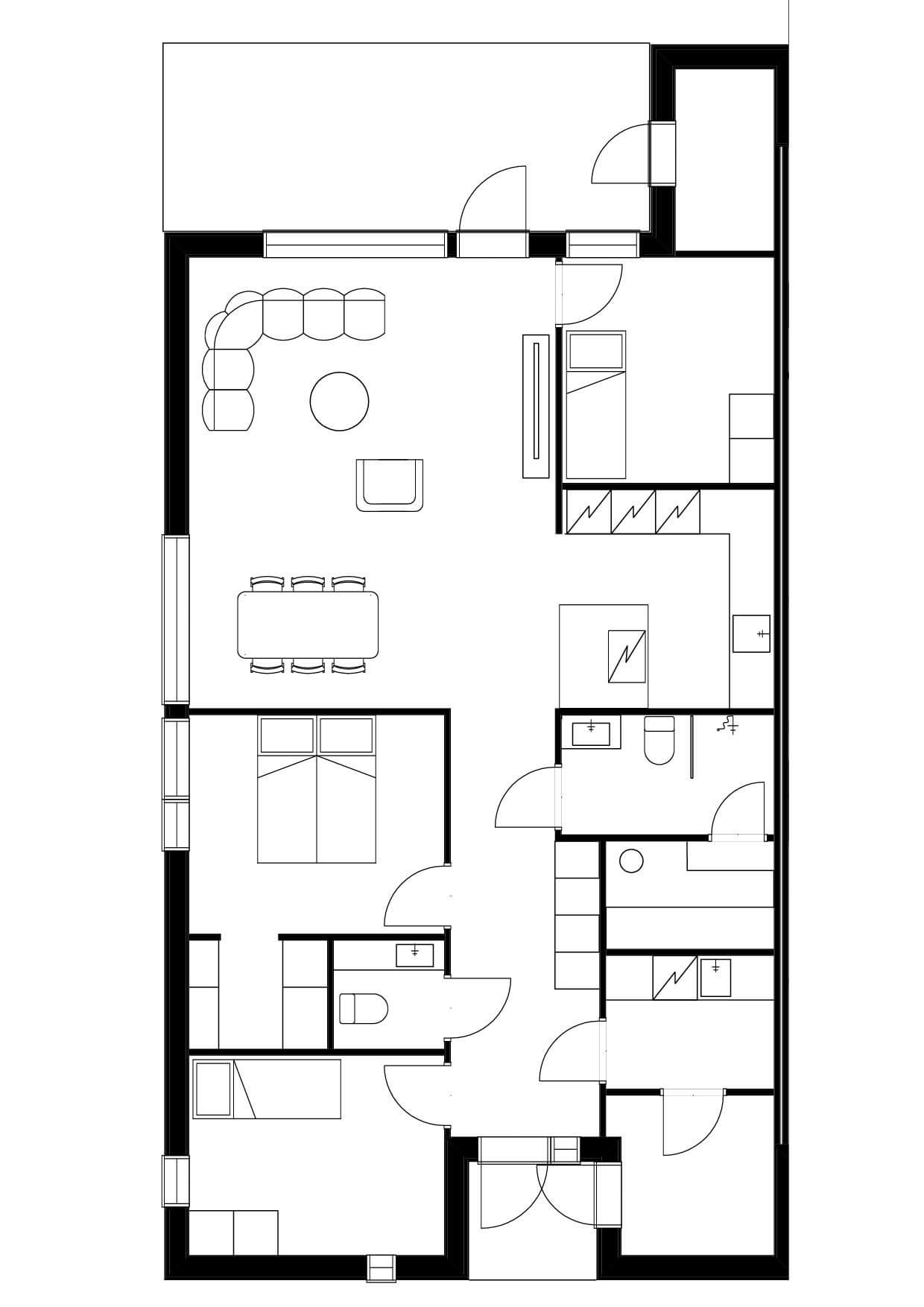
Okt : 5h, k, kph, s, wc, khh, terassi, ak: 415 000 € – 139 m²
Paritalo, Saarijärventie 105, valmistunut:
A : 4h, k, kph, s, wc, khh, terassi, ak – 103 m² (MYYTY)
B : 4h, k, kph, s, wc, khh, terassi, ak – 103 m² (MYYTY)
Autokatospaikka sisältyy hintaan.
Omakotitalo
Saarijärventie 103, Kirri, Jyväskylä
Rakentaminen käynnissä.
Omakotitalo 139 m²
5h, k, kph, s, wc, khh, terassi, ak
Moderni omakotitalo hyvällä sijainnilla Kirrissä
Rakentumassa oleva moderni kaksikerroksinen omakotitalo tarjoaa toimivat tilat koko perheelle. Talo sijaitsee rauhallisella paikalla lähellä luontoa ja hyviä lenkkimaastoja. Yläkerrassa on kolme tilavaa makuuhuonetta, moderni kylpyhuone/wc ja avara aulatila. Alakerran sydämenä on avoin keittiö-olohuonetila saarekkeella. Tilaan tuo avaruutta 3 metrin sisäkorkeus ja isot ikkunat. Alakerran makuuhuoneessa on iso vaatehuone ja käytännöllinen kodinhoitohuone tarjoaa suoran uloskäynnin. Alakerrassa on myös erillinen wc sekä kylpyhuone ja sauna.
Tekniikka ja varustelu
- Maalämpö vesikiertoisella lattialämmityksellä
- Koneellinen ilmanvaihto (LTO)
- Autokatos
- Suojaisa sisäpiha
Paritalo
Saarijärventie 105, Kirri, Jyväskylä
MYYTY
Paritalo 103 m²
4h, k, kph, s, wc, khh, terassi, ak
Tyylikäs arkkitehdin suunnittelema yksikerroksinen paritalo
Rakentumassa oleva moderni paritalo tarjoaa toimivat tilat yhdessä kerroksessa. Arkkitehdin suunnittelema koti sijaitsee rauhallisella paikalla lähellä luontoa ja hyviä lenkkimaastoja.
Kodin sydämenä on avoin keittiö-olohuonetila saarekkeella. Tilaan tuo avaruutta 3 metrin sisäkorkeus ja isot ikkunat. Kodissa on kolme makuuhuonetta, joista yhdessä on erillinen vaatehuone. Käytännöllinen kodinhoitohuone tarjoaa suoran uloskäynnin. Erillinen wc sekä kylpyhuone ja sauna.
Tekniikka ja varustelu
- Maalämpö vesikiertoisella lattialämmityksellä
- Koneellinen ilmanvaihto (LTO)
- Autokatos
- Kiinteistömuotoinen paritalo hallinnanjakosopimuksella
Kirri asuinalueena
Kirri on viihtyisä ja rauhallinen pientalovaltainen asuinalue Jyväskylässä, erinomaisten liikenneyhteyksien varrella, aivan Palokan palveluiden tuntumassa ja vain noin 8 km keskustasta pohjoiseen. Alueen yleisilme on vehreä sekä luonnonläheinen, ja asuntokanta koostuu pääosin omakotitaloista ja paritaloista.
Palvelut
- Palokan isoille marketeille n. 5 min ajomatka (n. 2 km)
- Keski-Palokan koulu 1,5 km
- Kirrin päiväkoti 600 m
- Bussipysäkki 50 m
Luonnon ja järvien läheisyys sekä ulkoilureitit tarjoavat hyvät mahdollisuudet harrastaa, liikkua ja nauttia rauhallisesta ympäristöstä. Sijainti Saarijärventien varrella takaa helpon kulun kaupungin keskustaan sekä valtateille, ja autolla matkat taittuvat nopeasti.
Kestäviä muuttovalmiita koteja
Kestävä ja kuiva koti syntyy oikeista valinnoista rakentamisen aikana. Tutustu Elani-Rakennuksen tapaan rakentaa ja lue miten muuttovalmis koti suunnitellaan.
”Yhteistyö Elanin kanssa sujui kaiken kaikkiaan tosi hyvin. Lähdettiin projektiin mukaan melko varhaisessa vaiheessa, niin että ollaan päästy kaikkeen suunnitteluun hyvin mukaan.”
”Me ollaan kyllä oltu hyvin tyytyväisiä, ihan ilman mitään ylimääräisiä kehumisia niin ei voi muuta sanoa, kuin että yhteistyö on kyllä ollut Elanin kanssa oikein toimivaa.”
Kiinnostuitko?
Ota yhteyttä ja pyydä lisätietoja,
myynti ja esittely Olli Aitto-oja: 0400 724620
Varaa esittely tai pyydä lisätietoja:
Kuvagalleria
Terve, kuiva koti!
Me Elanilla rakennamme terveitä koteja kuivaketjuperiaatteella. Kestävä ja kuiva koti syntyy oikeista valinnoista rakentamisen aikana. Uusi kotisi on suunniteltu, rakennettu ja viimeistelty huolella.
Kaikki Elani-Rakennuksen rakentamat kodit ovat täysin muuttovalmiita.
Ollaan päästy niin laajasti vaikuttamaan itse materiaaleihin ja saatu sen kautta meille omannäköinen koti. – Tea Nurminen
Yhteistyö Elanin kanssa sujui tosi hienosti, ihan alusta projektin loppuun saakka ja oikeastaan siitä eteenpäinkin. – Tiia Masalin










